Баня из газобетона: лучшие проекты + пошаговая ...
Строительство бани из газобетона
Строительство бани из газобетона своими руками ...
Бани из газоблоков проекты (44 фото) - фото - к...
Проект бани из газобетона AS-2000-9 с мансардой...
Проект жилого дома из газобетона - «Баня-1»
Бани, гараж из газобетона: плюсы и минусы, прое...
Проект современной бани из газобетона - 97 фото
Строительство бани из газобетона в Екатеринбург...
ПРОЕКТ БАНИ ИЗ ГАЗОБЕТОНА "AUTOBAN" - YouTube
Проект жилого дома из газобетона - «Баня-2»
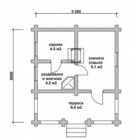
Проект современной бани из газобетона с террасо...