Что такое сплит-система: устройство и принцип р...
Сплит система инструкция
Как устроена и работает сплит-система? | Мастер...
Как правильно пользоваться сплит системой на ох...
Устройство внутреннего блока сплит системы и ка...
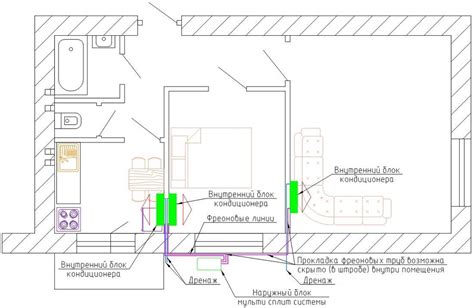
Что такое мульти-сплит система: описание принци...
Блок управления сплит-системой Dewoo DSD079LH |...
Установка Сплит-Системы (Кондиционера) в Москве...
Принцип работы сплит-системы: устройство. Как р...
Сплит-система: что это?
Установка мульти сплит системы на 2 комнаты цен...
Что такое сплит система в кондиционерах значение
Плата универсальная управления сплит-системой Z...
Настенная сплит-система Jax серии York ACE в Ро...
Блок управления сплит-системой купить в Калинин...
Сплит-система: типы, конструкция и принцип рабо...
Устройство сплит-систем
Что такое сплит система (кондиционер), описание...
Принципиальная схема наружного блока сплит системы
Основные функции управляющего блока сплит систе...
Все что нужно знать о сплит-системах | Блог pro...